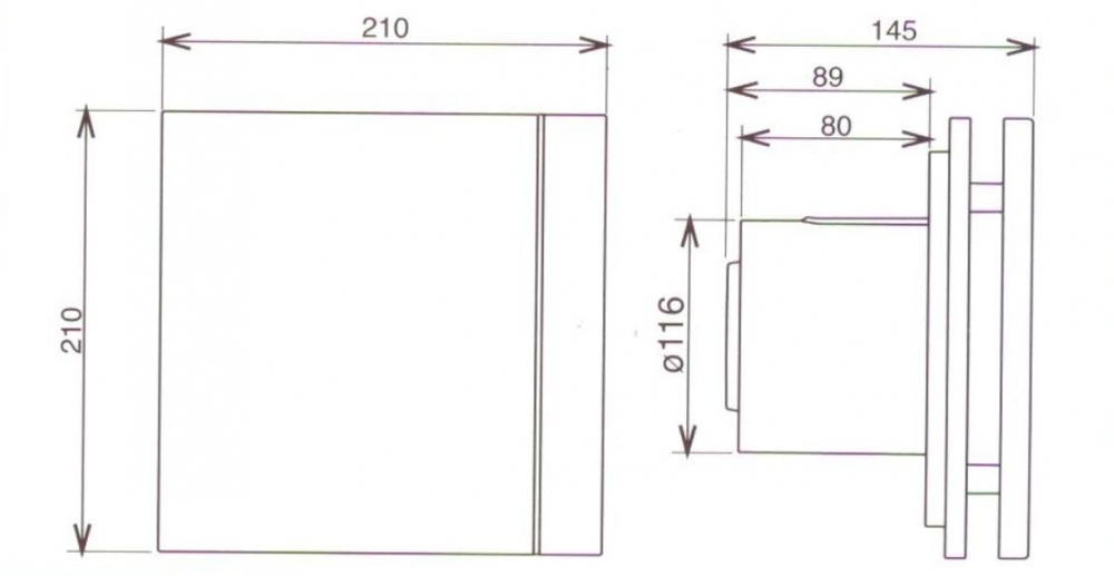
Высота 210 мм
Глубина 80 мм
Производительность, м3/ч 175
Диаметр, мм 116
Мощность, Вт 16
Давление, Па 80
Комплектация Обратный клапан
Цвет Барселона
Класс безопасности IP45
Уровень шума, db 35
Осевой вентилятор SILENT 200CZ DESIGN, предназначен для настенной или потолочной установки, специально разработан для решения проблем с вентиляцией в ванных комнатах и небольших помещениях.
Двигатель вентилятора SILENT 200CZ DESIGN крепится к корпусу при помощи специальных резинометаллических втулок, которые предотвращают передачу вибраций и шума от двигателя к корпусу вентилятора. Также, снижению шума способствует специальная форма защитной решетки вентилятора. Электродвигатели укомплектованы шариковыми подшипниками, не требующими обслуживания в течение всего срока службы вентилятора (более 30 000 часов).
Серия вентиляторов SILENT представлена тремя моделями: SILENT-100, SILENT-200 и SILENT-300, которые доступны с различными вариантами управления.
C Модель оснащена обратным клапаном.
Z Модель с шариковыми подшипниками, не требующими обслуживания (до 30 000 часов).
R Модель оснащена регулируемым таймером, который позволяет вентилятору работать некоторое время после выключения.
H Модель оснащена гигростатом.
D Модель оснащена датчиком движения (радиус действия 4 м).
Конструктивные особенности
Осевой вытяжной вентилятор SILENT 200CZ DESIGN производительностью до 180 м3/ч и с подсоединительным диаметром 120 мм. Вентилятор изготовлен из литого пластика, укомплектован обратным клапаном и однофазным электродвигателем (230 В - 50 Гц), класс изоляции B, со встроенной термозащитой.
Двигатели вентилятора крепятся к корпусу при помощи специальных резинометаллических втулок, которые предотвращают передачу вибраций и шума от двигателя к корпусу вентилятора. Вентилятор II класса герметичности,класс защиты IP45, может работать при температуре воздуха до +40°C.
Основные преимущества
Модель оснащена обратным клапаном, что препятствует обратному потоку воздуха при выключенном вентиляторе. Клапан открывается под действием потока воздуха от включенного вентилятора. Шариковые подшипники обеспечивают работу, не требующую обслуживания до 30000 часов.
В обычных вентиляторах вибрация и шум от двигателя передаются на корпус и распространяются в окружающее пространство, а в вентиляторах SILENT вибрация и шум от двигателя гасятся резинометаллическими втулками.
Наличие специально разработанной дизайнерами Soler&Palau защитной панели белого цвета, позволяющей дополнить интерьер любого помещения.Ширина 210 мм








